












1,5 MW Solar Project Type 7
Static Steel Fabrication Project
2x15 Vertical Panel Layout
Ground Connection Type; Steel Driven Column
Distance of Columns Below Ground 2100 mm. and 1500 mm.
Panel Dimensions : 2278 x 1135 x 30 mm
Panel Power : 550Wp
1 solar panel steel construction produces 16,5 kWp power in 1 hour
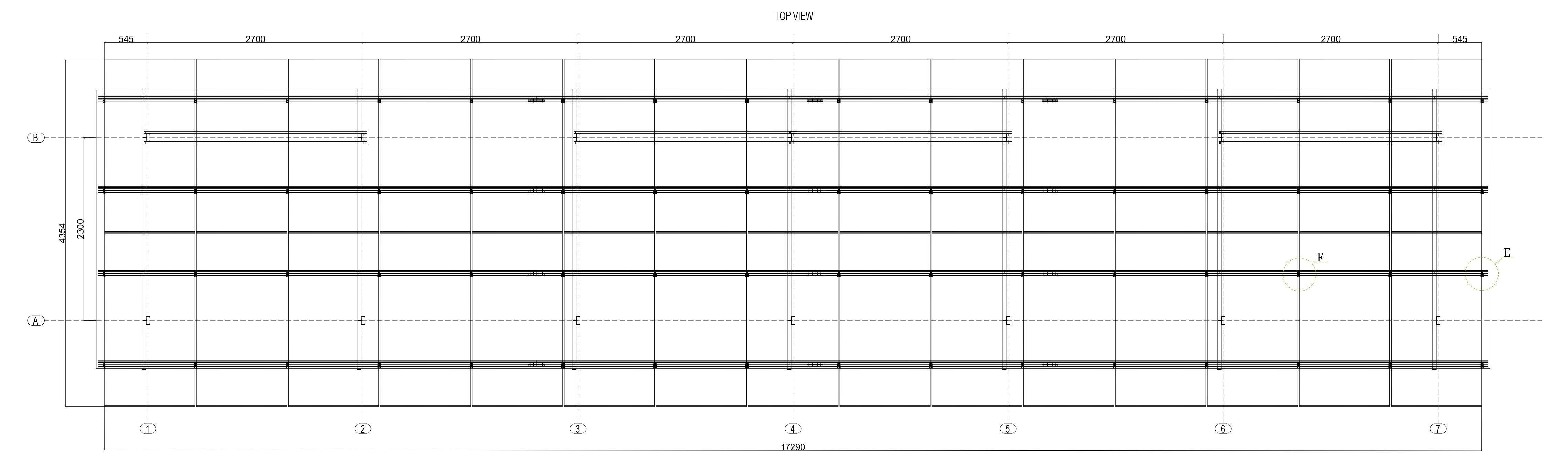
The system consists of 7 axles and the distance between each axle is 2700 mm.
Distance between two columns 2300 mm.
Horizantal angle of panel 18°
The closest distance of the panels to the floor 486 mm.
Prepared With AutoCAD Version 2021