













235,44 kWp Solar Project Type 17
Static Steel Fabrication Project
3x18 Vertical Panel Layout
Ground Connection Type; Steel Driven Column
Distance of Columns Below Ground 1500 mm. and 1200 mm.
Panel Dimensions : 2278 x 1134 x 30 mm
Panel Power : 545Wp
1 solar panel steel construction produces 29,43 kWp power in 1 hour
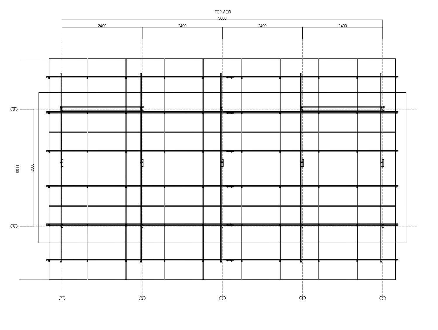
The system consists of 5 axles and the distance between each axle is 2400 mm.
Distance between two columns 3500 mm.
Horizantal angle of panel 16°
The closest distance of the panels to the floor 500 mm.
Prepared With AutoCAD Version 2021