











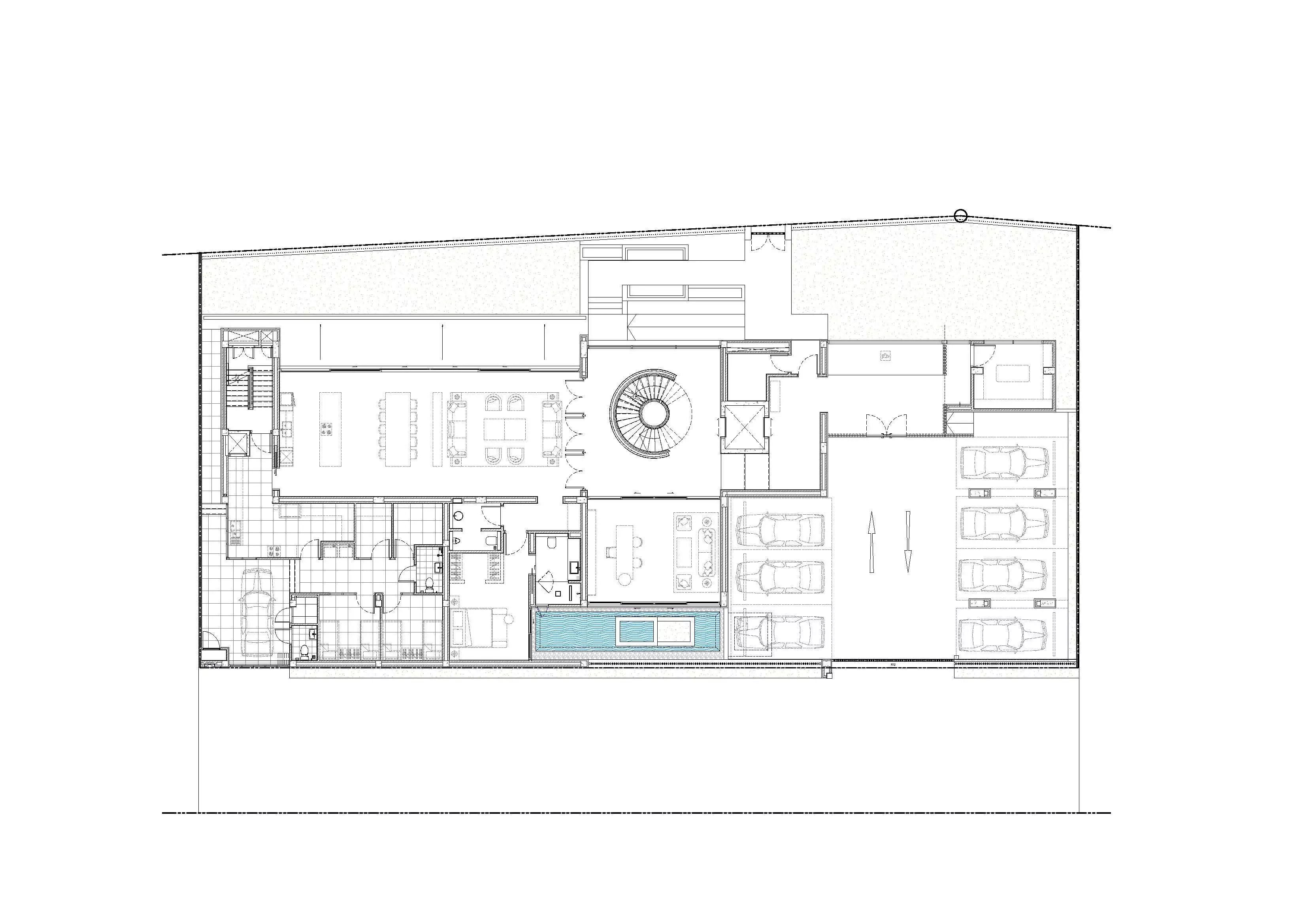
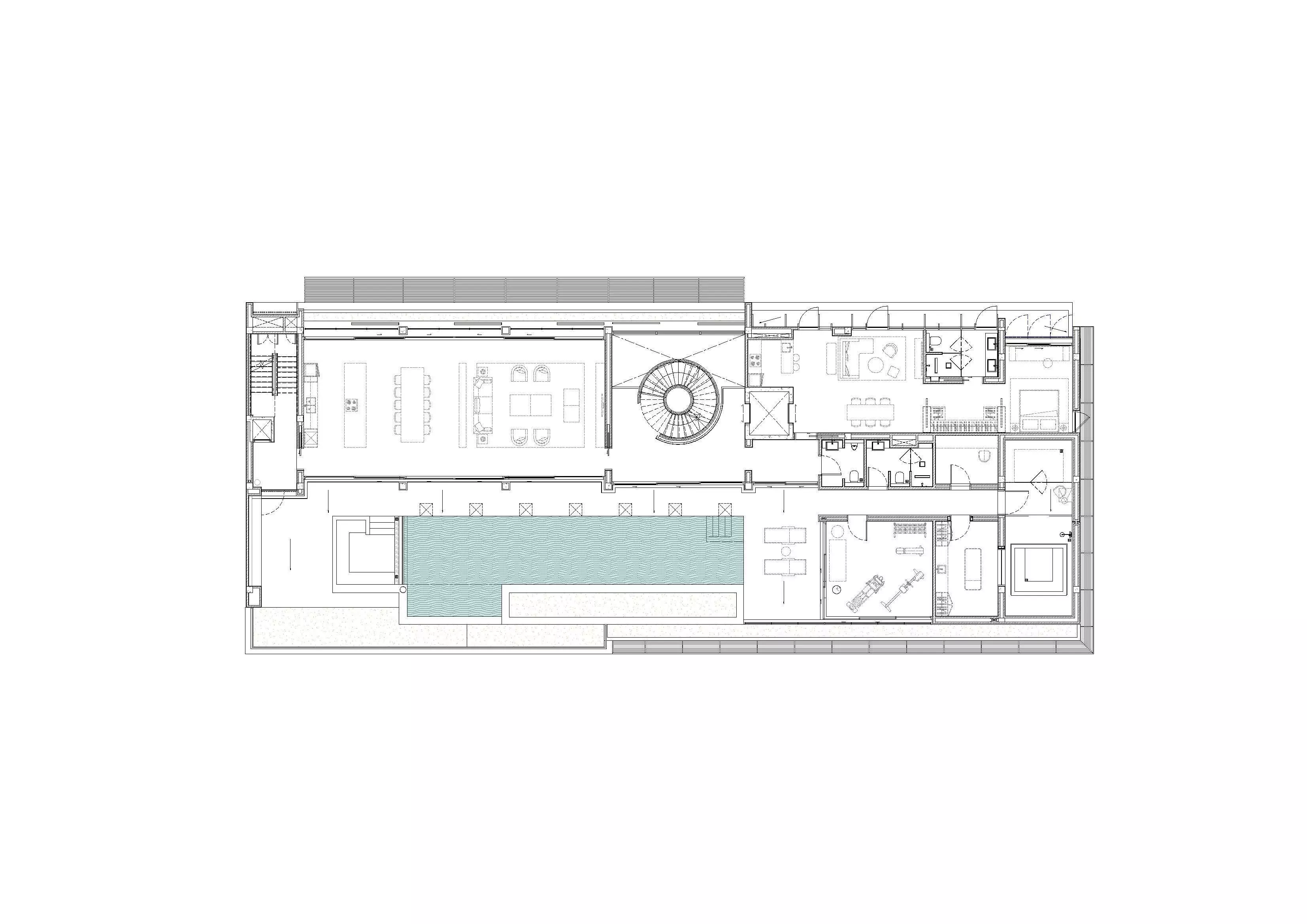
Ultra luxury Residential villa 01 area 1,600-1,800 sqmFully parametric Revit 2020 model is available for use.• Use: Residence/Villa• 1 Basement 160 sqm• Ground Floor 500 sqm• 2nd Floor 480 sqm • 3rd Floor 360 sqm• Number of Bedrooms: 6-7• Number of Bathrooms: 9• Additional Content: Spa, Gym,Onsen,Sauna Party Area, Pool,Pond,office area• Site area : 710 sqm (W20xD33m.)• Autodesk Revit 2020+