pichulonkoworkshop
Very nice model
















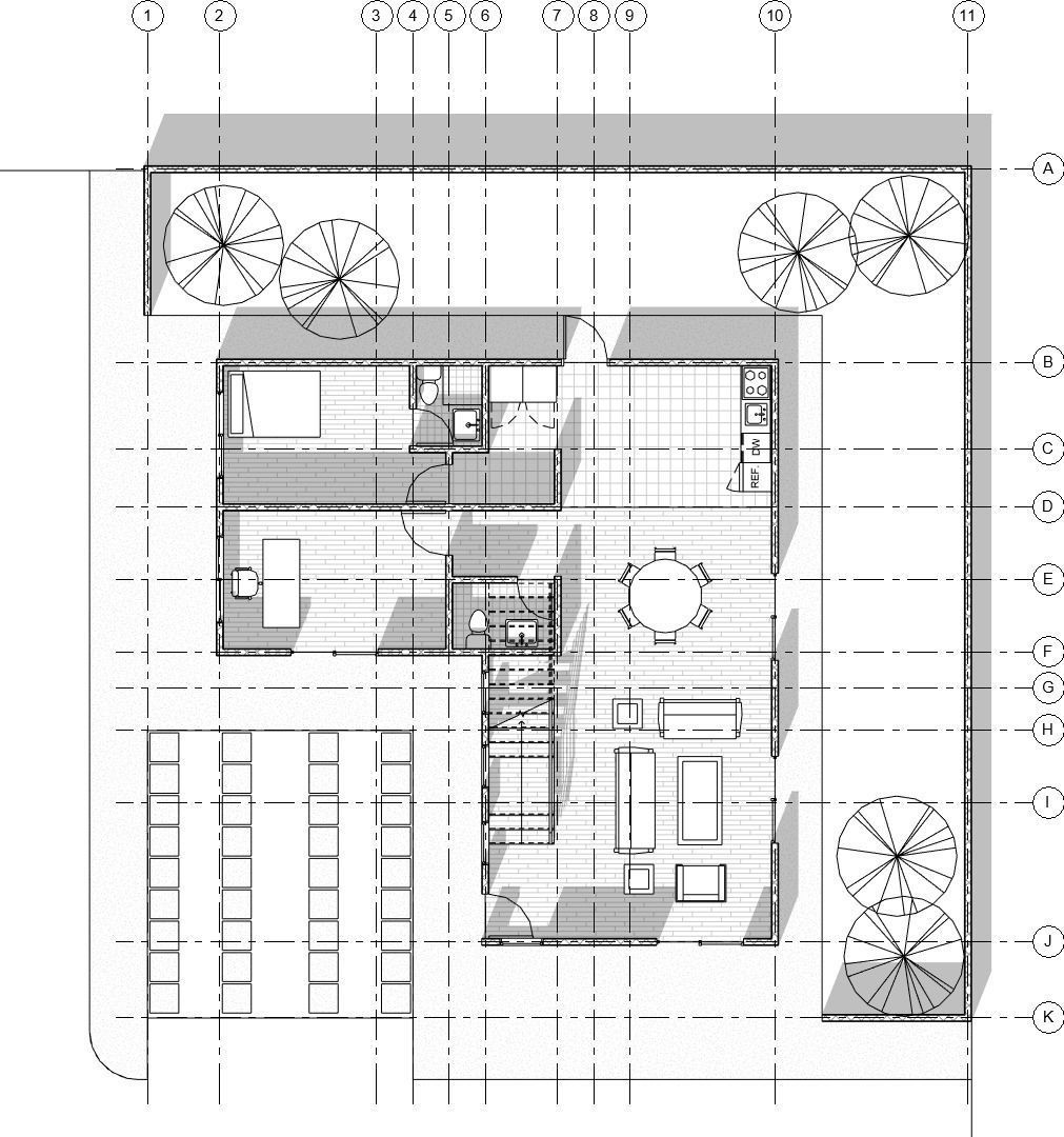
Conceptual project for a home in Metepec, Mexico, developed in 2014. There are two levels, it has three bedrooms each with bathroom, also living room, dining room, study, kitchen, laundry, etc.
The model is in Revit version 2020, some configurations for walls, floors and roofs are included, the images show the representation style that is included.
In addition to the file in RVT 2020 format, the versions in .DWG, .FBX , .MAX, .BLEND and .OBJ are included.
*The render shown was made with Vray, using 3ds Max to import the Revit model, and is only for promotional purposes.
*Materials or textures are not included.
*The polygon count is based on the 3ds Max file, other versions may vary in quantity.